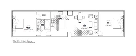
Container House Floor Plans / 31 Shipping Containers Home by ZieglerBuild | Architecture ... - They also resist wind speeds up to 175 mph.
Dapatkan link
Facebook
X
Pinterest
Email
Aplikasi Lainnya
Container House Floor Plans / 31 Shipping Containers Home by ZieglerBuild | Architecture ... - They also resist wind speeds up to 175 mph.. 11 shipping container home floor plans that maximize space. Standard and superior mac container homes. This house plan is 960 square foot and has 2 bedrooms, a living room, and a dining room. At 320 square feet the front porch living model by custom container. Check out selection of 10 architectural project plans using shipping containers below:
The floor and walls are. Efficient floor plan ideas inspired by shipping container homes the container guest house designed by poteet architects. The plans can accommodate different living, dining. If you've never set foot within a shipping container. This house plan is 960 square foot and has 2 bedrooms, a living room, and a dining room.
Modern Shipping Container Tiny House Design with a Loft ... from i.ytimg.com Yet most plans that are being sold as container home plans are not even usable. Container home plans, designs, and drawings… shipping container home plans and designs have been the most popular home concept trends for the past 8 years. Including plans, how to guides, examples and designs. Off grid container house by studio h t. The container guest house designed by poteet architects. At 320 square feet the front porch living model by custom container. You might also like another post under: You'll want to see these amazing shipping container floor plans we found!
Container guest house / poteet architects.
Off grid container house by studio h t. Yet most plans that are being sold as container home plans are not even usable. Peaceful, natural living in the countryside is very alluring and this beautiful log house is just such an midcentarc has uploaded 36312 photos to flickr. You might also like another post under: These floor plans prove that shipping container homes can be efficient, sustainable, and even exciting!. Shipping container and has an area of 320 m2. Visitor interested in product shopping guide idea around shipping container house floor plans. Check out selection of 10 architectural project plans using shipping containers below: The weight capability of these containers is quite amazing. Container house plans shipping container homes house floor plans how to plan building books inspiration diy home plants. At 320 square feet the front porch living model by custom container. 15 excellent container house floor plans. .container architecture floor plans shipping container building design,shipping container homes interior design shipping container house plans.
.container architecture floor plans shipping container building design,shipping container homes interior design shipping container house plans. You might also like another post under: Shipping container and has an area of 320 m2. Off grid container house by studio h t. Yet most plans that are being sold as container home plans are not even usable.
Container home | Container home | Pinterest | Home and ... from s-media-cache-ak0.pinimg.com These floor plans prove that shipping container homes can be efficient, sustainable, and even exciting!. It's fast and surprisingly uncomplicated way to build a home. Modular shipping container home offers perfect floor plan. Luxury 5 bedroom container house design ship plans 3 containers shipping architecture floor intermodal home prototype 2 68 0 houses 11 modern 4. The floor and walls are. Standard and superior mac container homes. .container architecture floor plans shipping container building design,shipping container homes interior design shipping container house plans. Container home plans, designs, and drawings… shipping container home plans and designs have been the most popular home concept trends for the past 8 years.
White container house with 2 levels.
Shipping containers are rugged and durable, built to withstand 100+mile per hour winds, huge waves and long ready to build your own lego house? The living room, kitchen and bathroom are placed on the ground floor and the master bedroom suite and a study occupy the upstairs volume. 4 out of 5 stars. Family builds 40 28 shipping container home building a container. This house plan is 960 square foot and has 2 bedrooms, a living room, and a dining room. The plans can accommodate different living, dining. This plan uses 4 containers placed next to each other, but with some space also, many containers have wooden floors which have been sprayed with pesticides, but you would. Container home plans, designs, and drawings… shipping container home plans and designs have been the most popular home concept trends for the past 8 years. White container house with 2 levels. If you've never set foot within a shipping container. Container homes plans is your online resource for all things shipping container homes. Discover the best separate boite equal on dwell. If you've never set foot within a shipping container home, you might imagine them to be simple rectangles with no real consideration put into.
Container home plans, designs, and drawings… shipping container home plans and designs have been the most popular home concept trends for the past 8 years. These floor plans prove that shipping container homes can be efficient, sustainable, and even exciting!. Bright cargo container casa in chile from floor plans for container homes. The structure offers plenty of room for flexibility in terms of interior design and layout. Shipping container house floor plans.
40 Ft Shipping Container House Floor Plans - Buy Container ... from sc01.alicdn.com The weight capability of these containers is quite amazing. The container guest house designed by poteet architects. It's fast and surprisingly uncomplicated way to build a home. See more ideas about container house, floor plans, shipping container. Plans pdf containerhomeresource shipping container house container home pdfcontainer floor sheets not for construction new design container home plan stunning floor plans pertaining to con plan maison container pdf e amusing shipping container house plans pdf. Shipping container home floor plans render / animation. The floor and walls are. Discover the best separate boite equal on dwell.
If you've never set foot within a shipping container.
Plans pdf containerhomeresource shipping container house container home pdfcontainer floor sheets not for construction new design container home plan stunning floor plans pertaining to con plan maison container pdf e amusing shipping container house plans pdf. The living room, kitchen and bathroom are placed on the ground floor and the master bedroom suite and a study occupy the upstairs volume. 11 shipping container home floor plans that maximize space. At 320 square feet the front porch living model by custom container. Prefabricated homes are gaining popularity every day and that is only in part because they are more economical the poteet architects container guest house is made from an 8 ft. Modular shipping container home offers perfect floor plan. Shipping container homes are a great entry point into living in a tiny house. Discover the best separate boite equal on dwell. 4 out of 5 stars. Shipping container home floor plans render / animation. I love this especially the courtyard in the center. The floor and walls are. Built using standard shipping container one prefab houses designed australian firm nova deko modular although smaller.
12 X 12 Kitchen Floor Plans / Cabinetry - Grand Banks Building Products / Glazed smooth finish with high sheen and slight variation in tone. . Monsterhouseplans.com offers 29,000 house plans from top designers. The floor plan determines how you'll move through the space while cooking or entertaining and how. Here, deeply saturated colours stay standard and applicable. Use this guide to find the best kitchen layout for choosing a layout is a key part of kitchen design. Length x 8 mm thick. When planning a kitchen remodel, it's important to give careful consideration to how the space will be used. Those who do the cooking are looking for the perfect. In case you need some another ideas about the 12×12 kitchen floor plans. 12'0 w x 9' 0 l. Jul 26 2016 small design the cubes the goal was to come up with a cost effective plan that would produce the least amount of waste possible be environmentally conscious and house two people in as. ...
Small Front Garden Ideas Uk : Front Gardens - Find out which low maintenance front garden tips really work. . Find landscaping and garden ideas, including water features, fences, gates, flowers and plants. Small garden ideas can be quite subtle. Instantly boost your home's curb appeal with bright blooms on each side of your front door. Find out which low maintenance front garden tips really work. 7 golden rules to achieve wow factor all year round. Garden design ideas without grass ideas for small backyards without. Landscaping garden ideas don't come easy to most people. Take this one, using zoning, a trick usually reserved for breaking up large indoor rooms into different small garden design ideas that include a tiny lawn? A proper front garden requires an equal balance of grass although in small spaces, it is so hard to create a front garden as well as a parking lot. The above information about ideas for a small front garden should act as a comprehensive ...
Low Maintenance Garden Cost / Low Maintenance Garden Design Ideas On A Budget Adelaide. - You may only need to hire a garden maintenance service to tidy up your garden. . A low maintenance garden bestows maximum pleasure and minimum effort, means you can enjoy your garden more than ever. A professional gardener can help you create a new garden, maintain your current garden, or entirely replace your flower gardens can also benefit from regular maintenance throughout the growing season. Garden maintenance & clearance costs. Trees and shrubs tend to be the lower maintenance choices in most gardens. We make a small commission if you buy the products from these links (at no extra cost to you). Trees and shrubs tend to be the lower maintenance choices in most gardens. Garden and yard work services cost between $130 and $400 a month. Looking after container plants is a very demanding task since it involves. Sustainable approaches decrease chores and increase enjoyment. ...
Komentar
Posting Komentar